2024年4月27日晚上7点半-9点半,,化学工程学院和壹号娱乐APP-瑞派立异设计工业学院约请茂名瑞派石化工程有限公司赵银瑞高级工程师为师生开展第四期结业设计线上指导培训会,,逾百名师生加入培训。。。




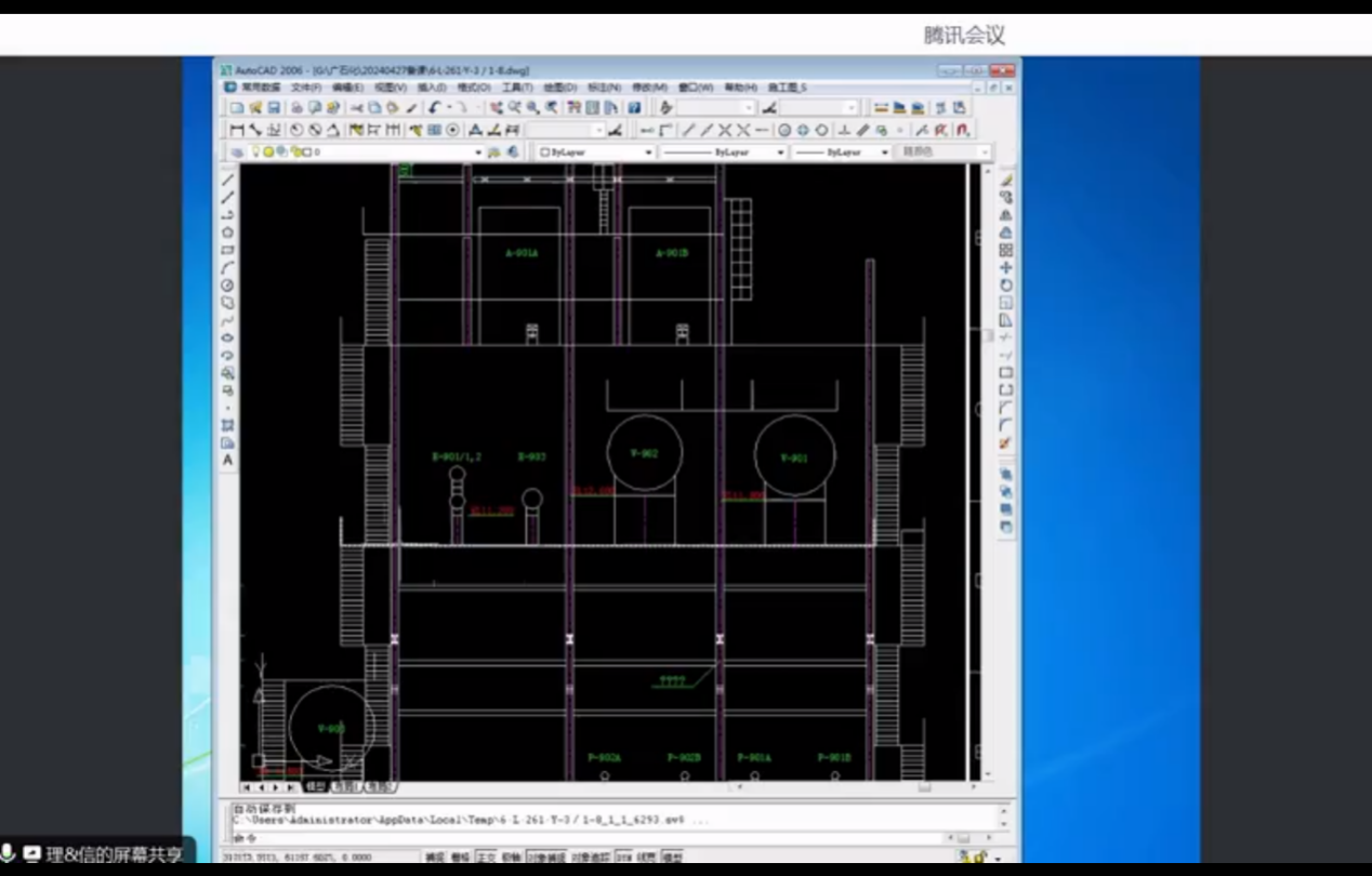
授课图片分享
此次指导培训会的主题是结业设计(论文)中装备制表及制图。。。赵银瑞工程师连系多年工程设计实践履历,,针对结业设计历程中的要害环节,,即工艺设计中主要装备的制表和制图举行了专业培训。。。赵工详细解说了以下四类装备:(1)塔器的设计与制图,,包括基本的疏散历程、、PFD和PID的细化,,以及管口压力品级、、塔的简图与尺寸、、塔顶空间与板间距设计等;;(2)容器的设计及其盘算;;(3)换热器的设计及其参数确定;;(4)泵的设计及其参数确定, 并讨论了平面与立面图绘制等内容。。。
此次培训强调了主要装备设计制表和制图的主要性,,对提升西席和学生的工程设计水平提供了专业指导,,增进了“双师双能”型西席步队的作育。。。
撰稿:王慧 审核:孟秀红 签发:隋亦可